Ki Café Renovation Project
喜Café 改修工事











Ki Café
Renovation Project
喜Cafe 改修工事
所在地/埼玉県秩父市
主要用途/店舗
構造・規模/木造2階建て
施工/黒澤工務所
竣工時期/2024.12
写真撮影/勅使河原真
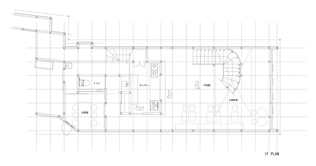
埼玉県秩父市場町の(株)宮前の一角を改装するプロジェクト。
(株)宮前が一部施工を行い、「喜Cafe」を運営している。
秩父神社の表参道という立地には、古くから外壁や屋根に銅板を用いた建物が並ぶ。
(株)宮前は100年続く、屋根・外壁の施工会社兼金物店であり、横葺きの銅板を外壁に用いたシンメトリーな外観が特徴である。この外観の印象を残しながら、観光地のシンボルとなるような建物を目指した。
銅板は、自然の風化によって緑青化し、自然の色合いが人々の心を落ち着かせる。室内空間にも壁一面に、緑青色の板金の屋根材を用いた。キッチンの壁には、SOLIDという外壁材を使用している。(株)宮前の屋根・外壁の施工技術を最大限に生かし、また屋根材・外壁材のショールームとなる空間とした。
石畳の番場通りに対し、壁一面をスチールサッシに改修して開放し、2階には番場通りを見下ろせるカウンター席を設けた。2階の天井は全て表しとし、丸太の梁や母屋が見える。
古き良き銅板の素材感や木構造の中に、スチールサッシや鉄骨階段が合わさり、新旧が融合した建物である。
秩父経済新聞(2025年5月13日)
https://chichibu.keizai.biz/headline/867
埼玉新聞(2025年6月5日)
https://www.saitama-np.co.jp/articles/141590/postDetail